
Projekt domu OLGA 2







Wykaz powierzchni
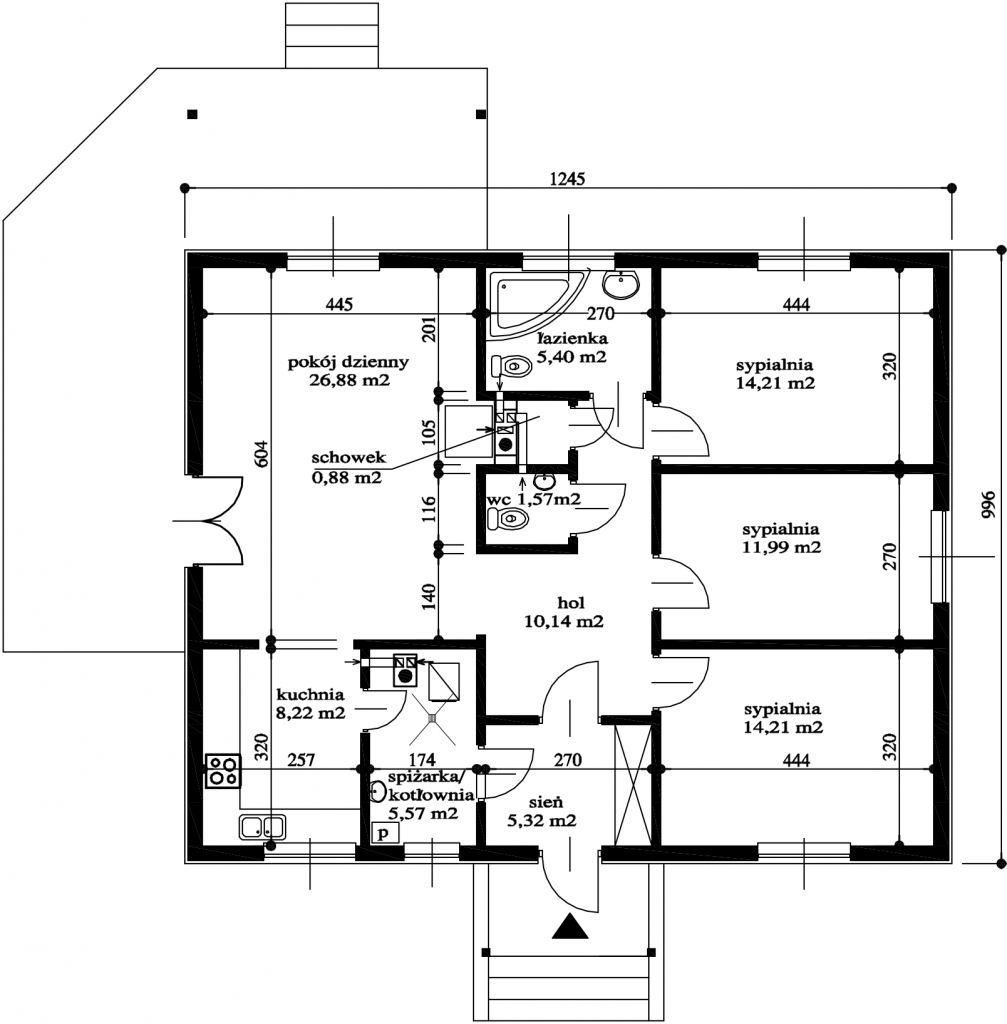
sypialnia 14,21 m2
sypialnia 11,99 m2
sypialnia 14,21 m2
sień 5,32 m2
hol 10,14 m2
wc 1,57 m2
łazienka 5,40 m2
salon 26,88 m2
kuchnia 8,22 m2
kotłownia 5,57 m2
schowek 0,88 m2
Razem 104,39 m2
Dane techniczne budynku
Powierzchnia użytkowa 98,88 m2
Powierzchnia użytkowa brutto 104,39 m2
Powierzchnia zabudowy 124,00 m2
Kubatura budynku 636,74 m3
Wysokość budynku w kalenicy 6,44 m
Wysokość budynku do okapu 3,51 m
Wymiary zewnętrzne budynku 12,45 x 9,96 m
Minimalne wymiary działki 20,45 x 17,96 m
Nachylenie dachu 300º
Opis projektu OLGA 2:
Projekt domu drewnianego OLGA-2 z instrukcją montażu to propozycja domu parterowego w technologii szkieletu drewnianego. Rozkład pomieszczeń na jednym poziomie dom spodoba się zwłaszcza rodzinom mającym małe dzieci lub opiekującym się osobą starszą. Prosta bryła domu oraz lekka konstrukcja sprawią, że dom będzie szybki i łatwy w budowie oraz ekonomiczny w późniejszej eksploatacji. Duży zadaszony taras przylegający do budynku będzie doskonałym miejscem wypoczynku zarówno w słoneczne popołudnia, jak i w czasie deszczu. Główną zaletą projektu OLGA jest dobrze pomyślany układ wnętrz zwiększający funkcjonalność domu. Wyraźny podział na strefę dzienną oraz nocną umożliwi spokojny sen z dala od hałasów. Do wnętrza domu przechodzi się przez sień, w której wydzielono miejsce na szafę wnękową oraz bezpośrednie wejście do domu i do kotłowni – spiżarki. Korytarz komunikacyjny prowadzący do pomieszczeń łączy się z przestronnym pokojem dziennym oraz kuchnią. W pobliżu strefy wejściowej – holu dla wygody domowników i gości wydzielono wc z niekrępującym wejściem. Obok kuchni zaprojektowano spiżarnię, w której będzie można przechować przetwory domowe, artykuły spożywcze oraz w miarę potrzeby wykorzystać dodatkowo jako kotłownię w której powierzchnia umożliwi montaż pieca na każde paliwo. Kominek zaplanowany w salonie umili czas mieszkańcom i ogrzeje budynek. W prawej części domu znajdują się sypialnie domowników. W trzech ustawnych, wygodnych sypialniach każdy znajdzie miejsce dla siebie. Prosta bryła budynku oraz proste rozwiązania konstrukcyjne ścian i więźby dachowej zostały zaprojektowane tak, aby osoba korzystająca z instrukcji montażu mogła pobudować dom we własnym zakresie zaoszczędzając kilkadziesiąt tysięcy złotych przy budowie własnego domu. Więźba dachowa z powtarzalnych elementów zbudowanych z szablonu gwarantuje ich prawidłowy montaż.
Technologia wykonania:
Budynek zaprojektowano w konstrukcji drewnianej szkieletowej tzw kanadyjczyk.
Ściany zewnętrzne drewniane, słupki o przekroju 4 x 24 cm z ociepleniem wełną mineralną lub styropianem
Ściany wewnętrzne drewniane słupki o przekroju 4 x 14 cm z ociepleniem wełną mineralną lub styropianem
Strop i więźba dachowa drewniana o przekroju 4 x 14 cm wykonana – montowana w szablonie.
Ściany na zewnątrz szalówka drewniana, panele blaszane lub tynk akrylowy na styropianie. Dodatkowe ocieplenie ścian zewnętrznych nie jest wymagane
Ściany wewnętrzne płyta gipsowo kartonowa na łatach. Dach o kącie nachylenia 50 kryty papą termozgrzewalną na płycie OSB-3
Projekt zawiera:
Opis techniczny
Rzut fundamentów
Rzut podwaliny
Rzut parteru
Rozrysowane ściany parteru
Przekroje
Więźba dachowa
Detale więźby dachowej
Elewacje
Wykaz tarcicy
Wykaz stolarki
Instalacje sanitarne
Instalacje elektryczne
Uprawnienia i izby projektantów
Charakterystyka energetyczna
Zgoda na zmiany
Do każdego projektu dodajemy publikację Zbuduj sam drewniany dom. Instrukcja montażu krok po kroku (wersja drukowana).
Zamówienie
Zamawiam projekt powtarzalny budynku mieszkalnego, jednorodzinnego w konstrukcji drewnianej szkieletowej, typ
OLGA 2
Cena projektu budowlanego architektonicznego i budowlanego technicznego z instalacjami po 3 egzemplarze

